Zelf uw keuken of badkamer bouwen of renoveren?
Ook voor iedereen die zelf de keuken of badkamer gaat bouwen of renoveren kan Het Keukenontwerp Bureau veel betekenen.
U hoeft namelijk niet meer verschillende winkels af om een goede tekening of advies te bemachtigen. Het Keukenontwerp Bureau komt bij u aan huis, maakt samen met u het ontwerp, geeft u handige tips en een goed advies over materialen, apparatuur en accessoires voor uw meesterwerk. Wat denkt u bijvoorbeeld van kant en klare laden van het merk Blum. Speciaal op maat gemaakt, u hoeft alleen maar de binnenmaten van de kastjes door te geven. Dat past altijd en neemt u veel werk uit handen.
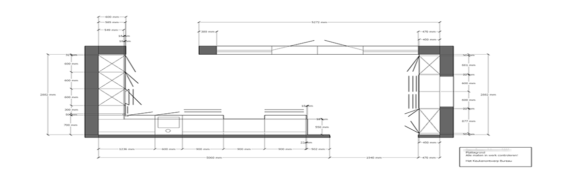
Met het basispakket heeft u alles in huis om van start te gaan. Zie hiervoor werkwijze. Daarbij worden de plattegrond en frontaanzichten met extra info voorzien.
Levering apparatuur en materialen
Wij kunnen u op verzoek alle apparatuur, werkbladen, kranen, afvalemmers, grepen, badkamermeubels en plaatmateriaal etc. leveren met de geldende garantie van de leverancier en tegen zeer concurrerende prijzen. Ook professionele muurverf en lak om te schilderen of te spuiten is mogelijk.
Neem voor meer informatie contact op en al uw vragen worden beantwoord in een persoonlijk gesprek.
Voor meer info over de keukenaccessoires kijk op de site van Doeco.

Laden van Blum kunnen op maat geleverd worden



